Auch dies ist Prinzlaff - ohne Wolfgang

Einklappen
X
 
  • Zeit
  • Anzeigen
Alles l
neue Beitr
  • Hans-Joerg +, Ehrenmitglied
    Forum-Teilnehmer
    • 10.02.2008
    • 5206

    #1

    Auch dies ist Prinzlaff - ohne Wolfgang

    Hallo - speziell für Wolfgang
    Einige Infos aus Prinzlaff !!!
    evtl. später mehr.

    Viele Grüße
    Hans-Jörg
    Angeh
  • Wolfgang
    Forumbetreiber
    • 10.02.2008
    • 11623

    #2
    AW: Auch dies ist Prinzlaff - ohne Wolfgang

    Schönen guten Morgen,
    hallo Hans-Jörg,

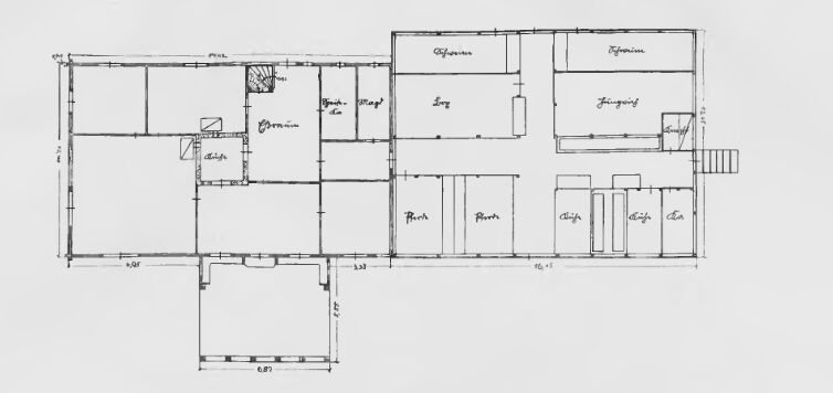
    vielen Dank für die Aufnahmen. Sie sind sehr interessant und verschaffen einen guten Eindruck über die vorhandenen Höfe. Du hattest versehentlich vergessen die Quelle anzugeben: Die Aufnahmen stammen aus dem Buch "Das Weichsel-Nogat-Delta", das nun auch im Internet von der Pommerschen Bibliothek zur Verfügung gestellt wird und herunterladbar ist: http://pbc.gda.pl/dlibra/docmetadata...r_id=&lp=1&QI=

    Das Thema "Jägerhof" haben wir schon einmal hier im Forum erwähnt: [font=arial black]"Der alte Jägerhof in Prinzlaff"[/font]. Der einleitende Beitrag in diesem Thema diente als Grundlage für einen Artikel im Danziger Hauskalender 2008.

    Viele Grüße aus dem nächtlichen Werder
    Wolfgang
    Das ist die höchste aller Gaben: Geborgen sein und eine Heimat haben (Carl Lange)
    Wolfgang Naujocks: Zertifizierter Führer und Volontär in der Gedenkstätte/Museum "Deutsches Konzentrationslager Stutthof" in Sztutowo
    Certyfikowany przewodnik i wolontariusz po muzeum "Muzeum Stutthof w Sztutowie - Niemiecki nazistowski obóz koncentracyjny i zagłady"

    Kommentar

    L